发布时间:2025-11-03 04:11:18    次浏览
J9九游国际鲁能·格拉斯小镇售楼处电线. 看房方式:鲁能·格拉斯小镇售楼处位置电线.预约方式:拨打鲁能·格拉斯小镇售楼处电线. 预约信息:需提供姓名、联系方式、预计到访人数及到访时间。
4. 预约福利:成功预约后,到访可领取额外房款的一个99折,并有专属置业顾问全程陪同讲解。拨打鲁能·格拉斯小镇售楼处电线. 注意事项:为保证接待质量,请出发前进行预约J9九游国际,避免案场没有销售接待;也可提前1-3天预约销售;
有明确国际教育规划的家庭:子女正处于或即将进入学龄阶段,计划在德闳学校等国际教育体系就读,希望实现 “校门口就是家” 的便捷。
课程体系:提供与中国国家课程相融合的创新课程,并在高中阶段提供国际文凭(IB)课程,为学生申请海外名校铺平道路。
师资与理念:师资力量全球择优招聘,注重全人教育,在学术之外,提供丰富的体育、艺术、戏剧等挑战性活动。

这是格拉斯小镇,尤其是六期(紧邻学校)的一大突出优势。社区内引进了北京德闳学校,该校是拥有400年历史的英国名校德威公学的姊妹学校J9九游国际,提供从幼儿园到高中的12年制全人教育。该校招收中国籍学生,这对于希望孩子接受纯正国际教育但又不想过早送孩子出国的家庭来说,具有极大的吸引力。


医疗:新华友谊医院通州院区J9九游国际,安贞医院通州院区,北京胸科医院,首都儿研所,阜外医院,潞河医院,东直门中医院等众多三甲医院保驾护航。
商业:斯普瑞斯奥特莱斯,松美术馆,罗红艺术馆,黑骑士高尔夫俱乐部,远洋乐堤港,爱琴海购物中心,万达广场,通州合生汇,希尔顿酒店,八里桥生鲜市场,宋庄艺术区各类特色私房菜等等。
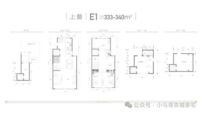
一层赠送25平米小私家庭院,先入院再入户,一层设计入户玄关,拥有入户仪式感三层一进入三层拥有大平层的空间尺度,步入眼帘的是7.05米的大跨度客厅,三层为客厅、餐厅、厨房为一家人公共空间
四层:单层面积约105平米,分为两间朝南卧室和一间朝北卧室,均为套房设计

阁楼层:阁楼层为赠送面积,约60平米 设计一间书房两间卧室及卫生间,适合孩子多的家庭
3.二层为私密生活区,有两个南向卧室面宽分别为3.75级3.3米面宽卧室。原始户型均为套房设计。一个北向卧室配备了名卫。
一层:接待及老人层,140平左右,(加30平米中心庭院面积),层高3.6米,由客厅,餐厅,厨房,老人房,南北庭院组成。(前庭院40平为赠送面积)二层:儿童层,60平左右,层高3.3米,由南北通透的1个儿童主卧,1个东南或者西南的儿童房(➕北向阳台10多平和40平左右的露台均为赠送面积)共110平使用
负一层:全家人互动交流区,140平左右,层高3.6米(抬地建设,其中地上2.4米+地下1.2米)由中西餐、挑空餐厅、客人套房组成。中间30平的挑空餐厅7.2米高,是最聚气的地方,餐桌文化得到很好的体现。
车库层:娱乐区:面积60-70平左右,层高3.6米,由车库、影音室,酒窖、洗衣房组成有1个采光窗开启,做到全明空间。车库为产权车位。
1.合院能满足三代人分层居住的需求,功能划分更细,优于大部分独栋产品,同时做到三面采光的设计,室内光线.别墅整体地上面积占比85%,采光通风好,舒适度高。
6.层高高:3.3-3.6-4.5米(一层负一层,均3.6米,二层3.3米、三层最高点4.5米)
一期玫瑰城堡,07年开盘,08年交房。占地9.5万平米,建面4.8万平米,由87栋西班牙风格独栋别墅组成;


1.极致低密与生态资源:六期容积率仅0.3,绿化率高达70%。项目坐落在温榆河畔,并有天然支流老河湾穿流而过,形成了24万平米自然水域和300亩原生湿地的独特景观。
2.现房销售与品质交付:六期产品为现房或准现房,这意味着购买风险大大降低。交付标准为毛坯,但会赠送私家电梯、定制铜门等核心部件,为业主提供了个性化的装修空间。
3.强大的社区内部配套:社区内规划有3万㎡的商业街,已引入包括餐厅、咖啡厅、健身房、羽毛球馆、太极禅会所等丰富业态。此外,还拥有200亩开心农场和600亩运动主题公园,满足高端业主的休闲生活需求。
鲁能·格拉斯小镇售楼处电线. 看房方式:鲁能·格拉斯小镇售楼处位置电线.预约方式:拨打鲁能·格拉斯小镇售楼处电线. 预约信息:需提供姓名、联系方式、预计到访人数及到访时间。